RK Evropa
MENU
Zavřít mapu
Foto
Prodané
14 990 000 Kč

D - Méně úsporná
Počet obrázků14
Prodej rodinného domu, Praha 4 - Libuš.
  • 129 m2
    Užitná plocha
  • 272 m2
    Plocha parcely
  • Cihlová
    Budova
  • Vila
    Typ objektu
  • Velmi dobrý
    Stav objektu

Prodej rodinného domu, Praha 4 - Libuš.

Jistebnická, Libuš, Praha, okres Hlavní město Praha

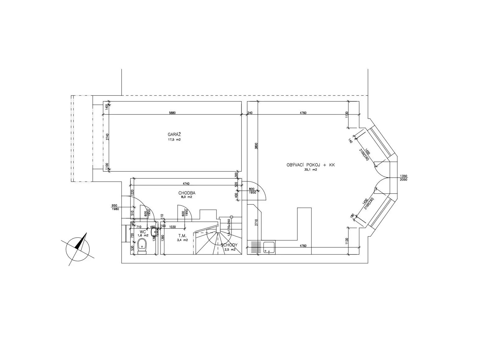
Ve výhradním zastoupení nabízíme k prodeji krajní řadový rodinný dům v ulici Jistebnická na Praze 4 – Libuš. Užitná plocha RD je 129m2, celkem 2 nadzemní podlaží. Zastavěná plocha domu je 84m2 a plocha zahrady je 188m2. Dispozice domu je 4+kk a půdorys přiložen ve fotografiích. V přízemí domu se nachází samostatná garáž vedle vchodu do domu, vstupní chodba, wc, technická místnost, obývací pokoj + kk s vchodem na zahradu. V patře se nachází celkem tři pokoje, wc + koupelna a šatna. Dům je napojen na veškeré sítě, vytápění plynové. Rodinný dům byl kolaudován v roce 2004 a v průběhu let velice dobře udržován. V okolí domu veškerá infrastruktura. PENB se zpracovává, proto nyní uvedeno G.

Informace o nemovitosti

Číslo zakázky
67379
Poznámka k ceně
Včetně právního servisu včetně provize a právního servisu
Provize
včetně provize
Okres
Hlavní město Praha
Obec
Praha
Městská část
Praha-Libuš
Část obce
Libuš
Ulice
Jistebnická
Datum aktualizace
11.7.2024
Kategorie
Domy
Typ objektu
Vila
Vlastnicví
Osobní
Stav objektu
Velmi dobrý
Budova
Cihlová
Počet podlaží objektu
5
Plocha parcely m2
272
Počet míst k parkování
1
Zástavba
Obytná
Elektřina
230V
Odpad
Veřejná kanalizace
Plyn
Plynovod
Topení
Ústřední plynové
Doprava
MHD, Silnice, Dálnice, Autobus
Komunikace
Asfaltová
Energetická náročnost
D - Méně úsporná

Kontaktovat makléře