RK Evropa
MENU
Zavřít mapu
Foto
15 490 000 Kč

G - Mimořádně nehospodárná
Počet obrázků32
Nadstandartní byt 5+1 na náměstí ve Valticích o výměře 218m2 s terasou 98m² a garáží pro 4 auta
  • 5+1
    Dispozice
  • Osobní
    Vlastnictví
  • 218 m2
    Plocha
  • 1
    Podlaží
  • Cihlová
    Budova

Nadstandartní byt 5+1 na náměstí ve Valticích o výměře 218m2 s terasou 98m² a garáží pro 4 auta

Růžová, Valtice, okres Břeclav

Nabízíme k prodeji prostorný nadstandartní byt 5+1 v prestižní lokalitě na Růžové ulici ve Valticích, přímo v historickém centru. Byt se nachází v 2. NP moderního bytového komplexu a nabízí 218 m² obytného prostoru, velkou terasu 98 m² s výhledem na náměstí a garáž až pro 4 automobily + venkovní stání pro další 3 vozy.

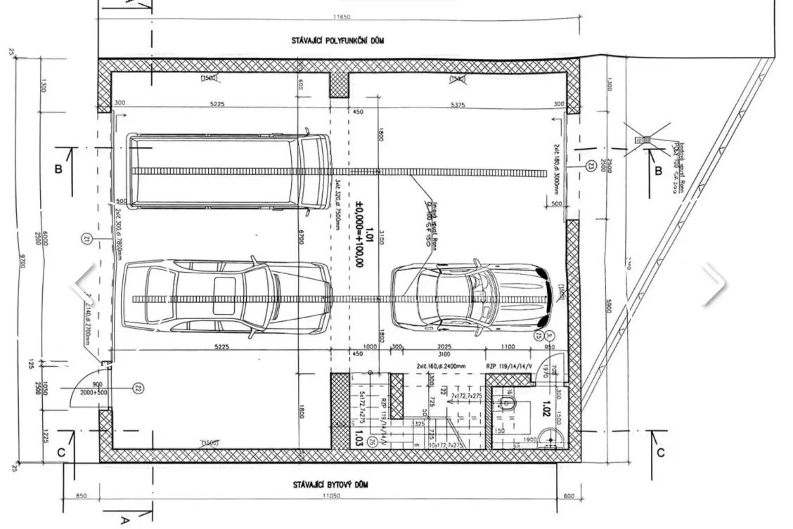
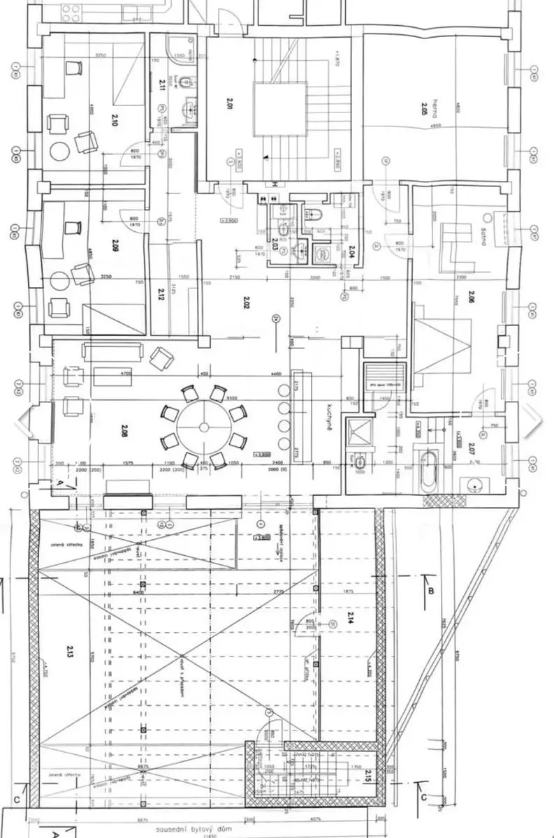
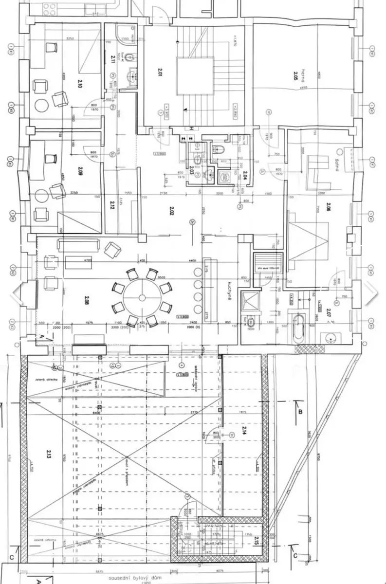
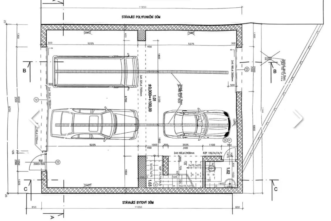
Dispozice viz. foto půdorysu bytu:
- *(2.06 + 2.07)* – Ložnice s vlastní šatnou (24,63 m²), *soukromou saunou* a koupelnou se sprchou i vanou (16,93m²)
- *(2.05)* – Prostorný pokoj (23,7 m²) s vestavěnou skříní
- *(2.10 + 2.09)* – Spojený prostor: ložnice (15,88m²) + menší obývací pokoj (15,83m²)
- *(2.08)* – Otevřený obývací pokoj (51,16m²) s kuchyní a jídelnou – vybavená kuchyně s ostrůvkem
- *( 2.02)* – Chodba (32m²)
- *(2.04)* – Technická místnost -kotel, pračka, sušička (3,72m²)
- *(2.03)* – Samostatné WC (2,1m²)
- *(2.11)* – Koupelna se sprchou, WC a umyvadlem (4,73m²)
- *(2.12)* – Šatna/botník s úložným prostorem (4,65m²)
- *(2.13+2.14)* – Velká terasa (částečně zastřešená) s úložným prostorem (97,25m²)
- *(2.15)* – Schodiště do garáže (7,60m²)
- *(1.01)* – Garáž + úložné regály (93,5m²)
- *(1.02)* – WC v garáži (3.08m²)
- *(1.03)* – Schodiště (2,28m²)

Další výhody:
✔ Kompletní klimatizace - nové značka Daikin
✔ Centrální vysavač
✔ Kvalitní dřevěné podlahy
✔ Zabezpečovací systém
✔ Nedávno zrekonstruovaná fasáda a zateplení budovy
✔ Včetně vybavení

Energetická třída *G* - energetický štítek nebyl dodán (dům má nové okna, fasádu a zateplení).

Ideální pro náročné kupce hledající prostor, luxus a skvělou polohu! "Bydlete v centru Valtic s výhledem na historii a veškerým komfortem!"

Volejte a domluvte si prohlídku ještě dnes!



Informace o nemovitosti

Číslo zakázky
928277
Okres
Břeclav
Obec
Valtice
Ulice
Růžová
Datum aktualizace
14.11.2025
Kategorie
Byty
Číslo podlaží v domě
1
Dispozice bytu
5+1
Vlastnicví
Osobní
Stav objektu
Dobrý
Budova
Cihlová
Počet míst k parkování
6
Elektřina
230V
Odpad
Veřejná kanalizace
Plyn
Plynovod
Komunikace
Asfaltová
Energetická náročnost
G - Mimořádně nehospodárná

Kontaktovat makléře