RK Evropa
MENU
Zavřít mapu
Foto
8 999 998 Kč

G - Mimořádně nehospodárná
Počet obrázků44
Prodej domu se dvěma bytovými jednotkami a komerčním prostorem v obci Děčín – Chrochvice
  • 5 a více pokojů
    Dispozice
  • 554 m2
    Užitná plocha
  • 553 m2
    Plocha parcely
  • Cihlová
    Budova
  • Rodinný
    Typ objektu
  • Velmi dobrý
    Stav objektu

Prodej domu se dvěma bytovými jednotkami a komerčním prostorem v obci Děčín – Chrochvice

Mendelova, Děčín, okres Děčín

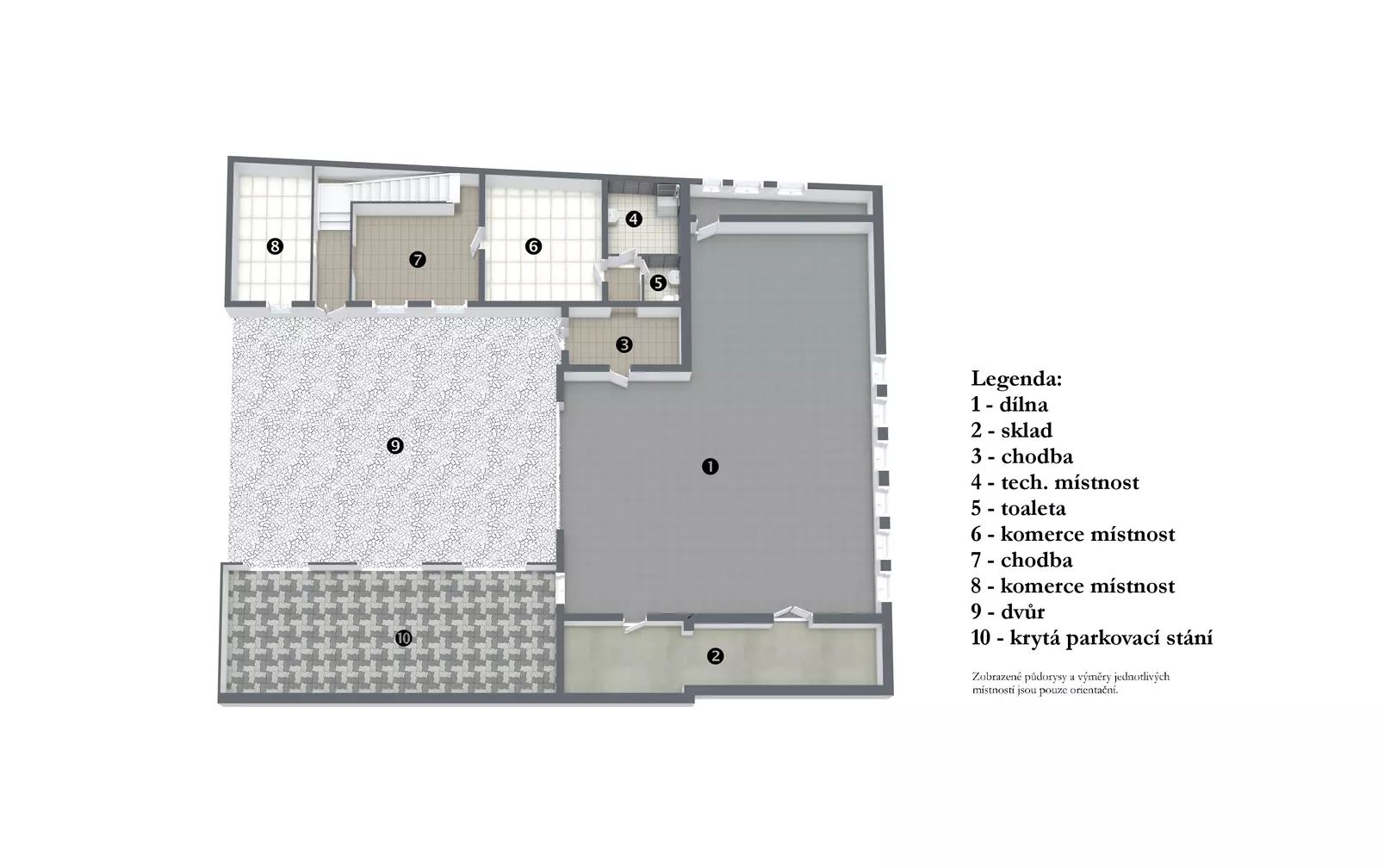
Nabízený dům je postaven na pozemku o rozloze 553 m² a má užitnou plochu 554 m². Jedná se o zděnou stavbu se dvěma nadzemními podlažími. V 1. NP se nachází komerční prostory, ve 2. NP kancelář a dvě samostatné bytové jednotky o dispozicích 3+kk a 2+1. K domu náleží oplocený dvůr se zpevněným povrchem, který nabízí kryté parkovací stání až pro 4 osobní automobily.
Vnitřní dispozice:
1.NP: zádveří, schodiště, denní místnost, chodba, technická místnost, koupelna, WC, dvě dílny, úklidová komora, dvě skladovací místnosti. Součástí jsou také rolovací vrata s elektrickým pohonem.

Celková užitná plocha: 283 m².
2.NP: kancelář, hala, toaleta a dvě samostatné bytové jednotky, které jsou částečně vybaveny.
Byt 3+kk: zádveří, šatna, prostorná koupelna s vanou, sprchovým koutem a toaletou, kuchyň s obývacím pokojem, dvě ložnice, chytrá domácnost, podlahové vytápění, v obývacím pokoji je krb. Užitná plocha: 120 m²
Byt 2+1: zádveří, koupelna s toaletou, kuchyň, dvě ložnice. Tento byt je po kompletní rekonstrukci. Vytápění je řešeno elektrickými přímotopy. Užitná plocha: 68 m²
Z každého z bytů je vstup na společnou terasu.
Celková užitná plocha 2. NP: 271 m².
Dům je napojen na veřejné sítě: vodovod, kanalizaci, elektřinu a zemní plyn. Vytápění zajišťují dva plynové kotle a elektřina. Celkový technický stav nemovitosti je velmi dobrý.
Nemovitost se nachází v zastavěné části města Děčín – Chrochvice a je přímo přístupná z místní veřejné komunikace. Dobrá dopravní dostupnost – v blízkosti se nachází zastávka MHD. V obci je k dispozici železniční i autobusová zastávka. Dálnice je vzdálena 10 minut jízdy autem. Veškerá občanská vybavenost v místě. Okolní zástavbu tvoří převážně objekty pro bydlení.
V případě, že Vás tato nabídka zaujala, tak se neváhejte na nás obrátit. Rádi Vám poskytneme další informace a domluvíme termín prohlídky.
Jiří Vašata

Hypoteční kalkulačka

Informace o nemovitosti

Číslo zakázky
960737
Provize
včetně provize
Okres
Děčín
Obec
Děčín
Ulice
Mendelova
Datum aktualizace
11.6.2025
Kategorie
Domy
Typ objektu
Rodinný
Dispozice domu
5 a více pokojů
Vlastnicví
Osobní
Stav objektu
Velmi dobrý
Budova
Cihlová
Plocha parcely m2
553
Počet míst k parkování
4
Elektřina
230V
Odpad
Veřejná kanalizace
Plyn
Plynovod
Doprava
MHD, Vlak
Energetická náročnost
G - Mimořádně nehospodárná

Kontaktovat makléře