RK Evropa
MENU
Zavřít mapu
Foto
8 999 998 Kč

G - Mimořádně nehospodárná
Počet obrázků44
Prodej činžovního domu se dvěma bytovými jednotkami a komerčním prostorem v obci Děčín – Chrochvice
  • Cihlová
    Budova
  • Velmi dobrý
    Stav objektu
  • 554 m2
    Užitná plocha
  • 4
    Parkování

Prodej činžovního domu se dvěma bytovými jednotkami a komerčním prostorem v obci Děčín – Chrochvice

Mendelova, Děčín, okres Děčín

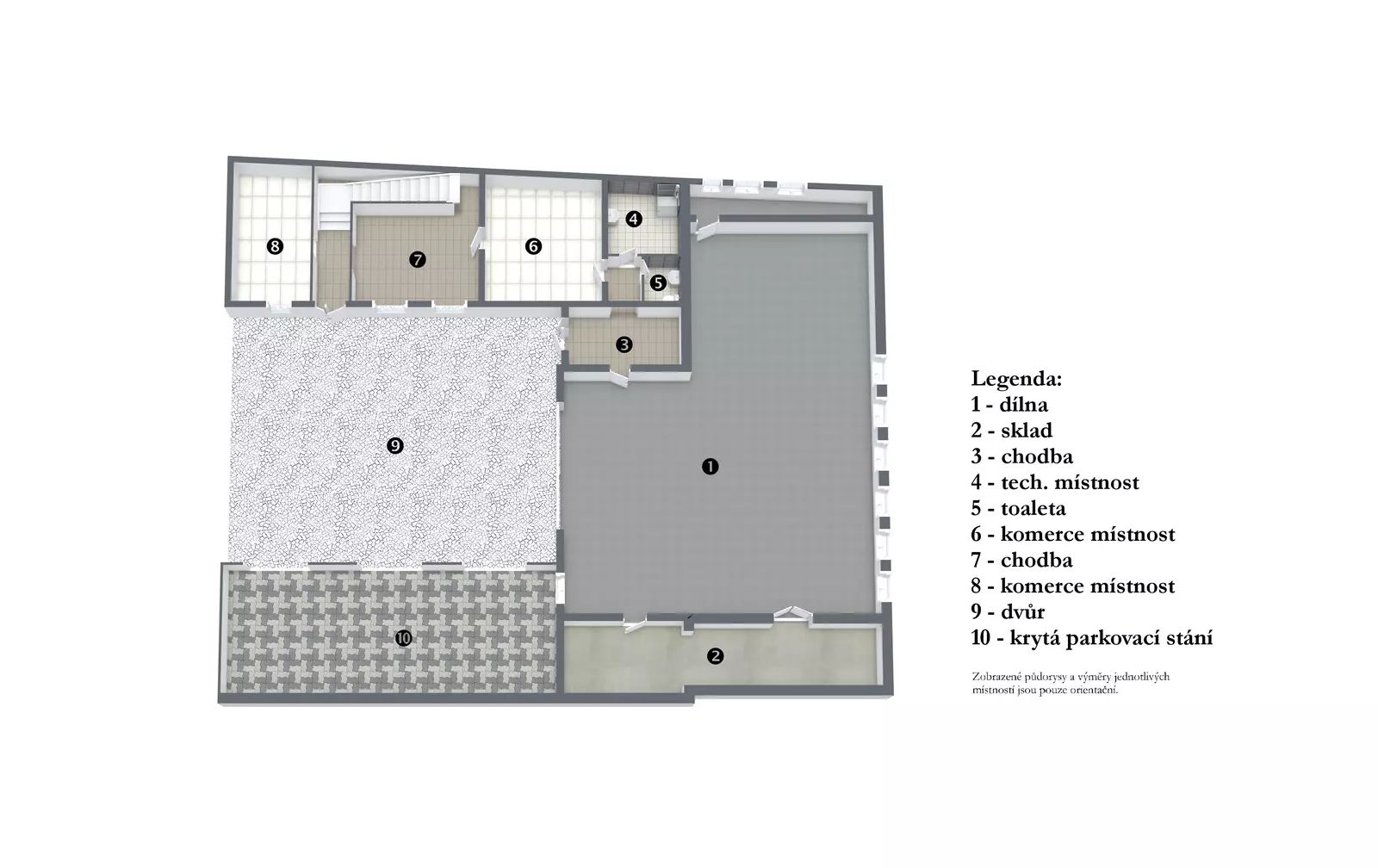
Nabízený dům je postaven na pozemku o rozloze 553 m² a má užitnou plochu 554 m². Jedná se o zděnou stavbu se dvěma nadzemními podlažími. V 1. NP se nachází komerční prostory, ve 2. NP kancelář a dvě samostatné bytové jednotky o dispozicích 3+kk a 2+1. K domu náleží oplocený dvůr se zpevněným povrchem, který nabízí kryté parkovací stání až pro 4 osobní automobily.
Vnitřní dispozice:
1.NP: zádveří, schodiště, denní místnost, chodba, technická místnost, koupelna, WC, dvě dílny, úklidová komora, dvě skladovací místnosti. Součástí jsou také rolovací vrata s elektrickým pohonem.

Celková užitná plocha: 283 m².
2.NP: kancelář, hala, toaleta a dvě samostatné bytové jednotky, které jsou částečně vybaveny.
Byt 3+kk: zádveří, šatna, prostorná koupelna s vanou, sprchovým koutem a toaletou, kuchyň s obývacím pokojem, dvě ložnice, chytrá domácnost, podlahové vytápění, v obývacím pokoji je krb. Užitná plocha: 120 m²
Byt 2+1: zádveří, koupelna s toaletou, kuchyň, dvě ložnice. Tento byt je po kompletní rekonstrukci. Vytápění je řešeno elektrickými přímotopy. Užitná plocha: 68 m²
Z každého z bytů je vstup na společnou terasu.
Celková užitná plocha 2. NP: 271 m².
Dům je napojen na veřejné sítě: vodovod, kanalizaci, elektřinu a zemní plyn. Vytápění zajišťují dva plynové kotle a elektřina. Celkový technický stav nemovitosti je velmi dobrý.
Nemovitost se nachází v zastavěné části města Děčín – Chrochvice a je přímo přístupná z místní veřejné komunikace. Dobrá dopravní dostupnost – v blízkosti se nachází zastávka MHD. V obci je k dispozici železniční i autobusová zastávka. Dálnice je vzdálena 10 minut jízdy autem. Veškerá občanská vybavenost v místě. Okolní zástavbu tvoří převážně objekty pro bydlení.
V případě, že Vás tato nabídka zaujala, tak se neváhejte na nás obrátit. Rádi Vám poskytneme další informace a domluvíme termín prohlídky.
Jiří Vašata

Hypoteční kalkulačka

Informace o nemovitosti

Číslo zakázky
960665
Provize
včetně provize
Okres
Děčín
Obec
Děčín
Ulice
Mendelova
Datum aktualizace
11.6.2025
Kategorie
Komerční
Druh prostor
Rodinný
Vlastnicví
Osobní
Stav objektu
Velmi dobrý
Budova
Cihlová
Plocha parcely m2
553
Počet míst k parkování
4
Elektřina
230V
Odpad
Veřejná kanalizace
Plyn
Plynovod
Doprava
MHD, Vlak
Energetická náročnost
G - Mimořádně nehospodárná

Kontaktovat makléře