RK Evropa
MENU
Zavřít mapu
Foto
Zlevněné
13 999 000 Kč

C - Úsporná
Počet obrázků5
Dovolujeme si Vám nabídnout komerční prostor (1.02) 126,02 m2 z developerského projektu Rezidence Petřiny na Praze 6.
  • Skeletová
    Budova
  • Novostavba
    Stav objektu
  • 126 m2
    Užitná plocha
  • 1
    Parkování

Dovolujeme si Vám nabídnout komerční prostor (1.02) 126,02 m2 z developerského projektu Rezidence Petřiny na Praze 6.

U Petřin, Praha, okres území Hlavního města Prahy

Dovolujeme si Vám nabídnout komerční prostor o velikosti 126,02 m2 z developerského projektu Rezidence Petřiny na Praze 6. Projekt obsahuje 26 prémiových bytů v osobním vlastnictví v těsné blízkosti metra Petřiny a Obory Hvězda. Byty mají podlahové vytápění, dřevěné podlahy, klimatizaci, chytrou domácnost, venkovní žaluzie či je na výběr z luxusních materiálů.
Bytový dům má dispozice bytů od menších 1+kk po příjemných 4+kk. Každý byt je jiný a něčím specifický. Ať už je to výhled, dispozice či velkorysá terasa.
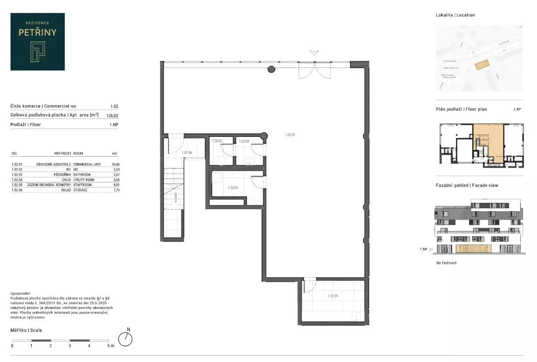
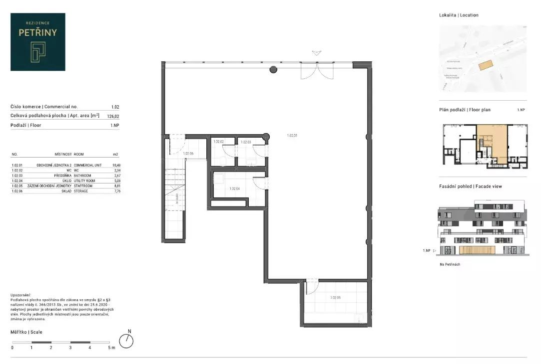
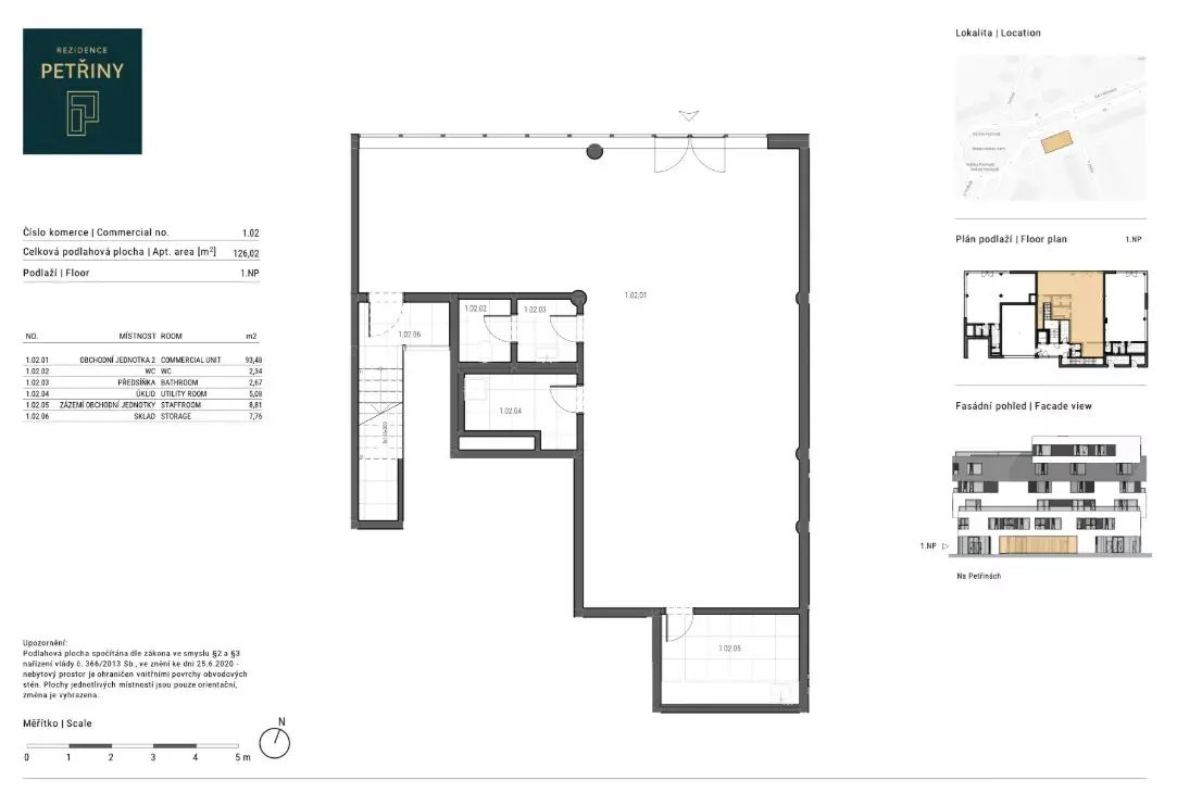
Dispozice komerčního prostoru s označením 1.02. Komerční prostor se nachází v 1.NP.
Disp.: obchodní jednotka 93,48 m2, WC 2,34 m2, předsíňka 2,67 m2, úklid 5,08 m2, zázemí obchodní jednotky 8,81 m2, sklad 7,76 m2. Celková plocha: 126,02 m2.

Lokalita:
Město:
Už několik let jsou pražské Petřiny vyhledávanou městskou čtvrtí. Je to dáno, polohou, klidem i vybaveností. Jedním z nejpodstatnějších benefitů je dopravní dostupnost. Stanice metra trasy A Petřiny umožňuje rychlé přesuny napříč celé metropole. Autem pár minut na letiště, nákupní centrum Zličín, pražský okruh nebo Smíchovskou náplavku nebo na kole za sportem do blízkého parku Ladronka. Petřiny jsou dnes moderní část Prahy spojující v sobě klid, pohodu a životní styl.
Příroda:
Rezidence Petřiny má přírodu doslova na dosah. Stačí pět minut procházkovým tempem a jste v oboře letohrádku Hvězda. In-line bruslení, jogging nebo volleyball naleznete v nedalekém parku Ladronka a nejhezčí scenérie máte na dosah v chráněné oblasti Divoká Šárka s vodní nádraží Džbán.
Budu se těšit na prohlídku s Vámi.

Hypoteční kalkulačka

Informace o nemovitosti

Číslo zakázky
954856
Provize
včetně provize
Okres
území Hlavního města Prahy
Obec
Praha
Městská část
Praha 6
Ulice
U Petřin
Datum aktualizace
29.1.2026
Kategorie
Komerční
Druh prostor
Obchodní prostory
Vlastnicví
Osobní
Stav objektu
Novostavba
Budova
Skeletová
Počet podlaží objektu
8
Počet míst k parkování
1
Elektřina
230V
Odpad
Veřejná kanalizace
Energetická náročnost
C - Úsporná

Kontaktovat makléře