RK Evropa
MENU
Zavřít mapu
Foto
Novinka
11 775 870 Kč

C - Úsporná
Počet obrázků11
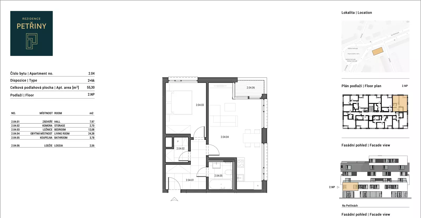
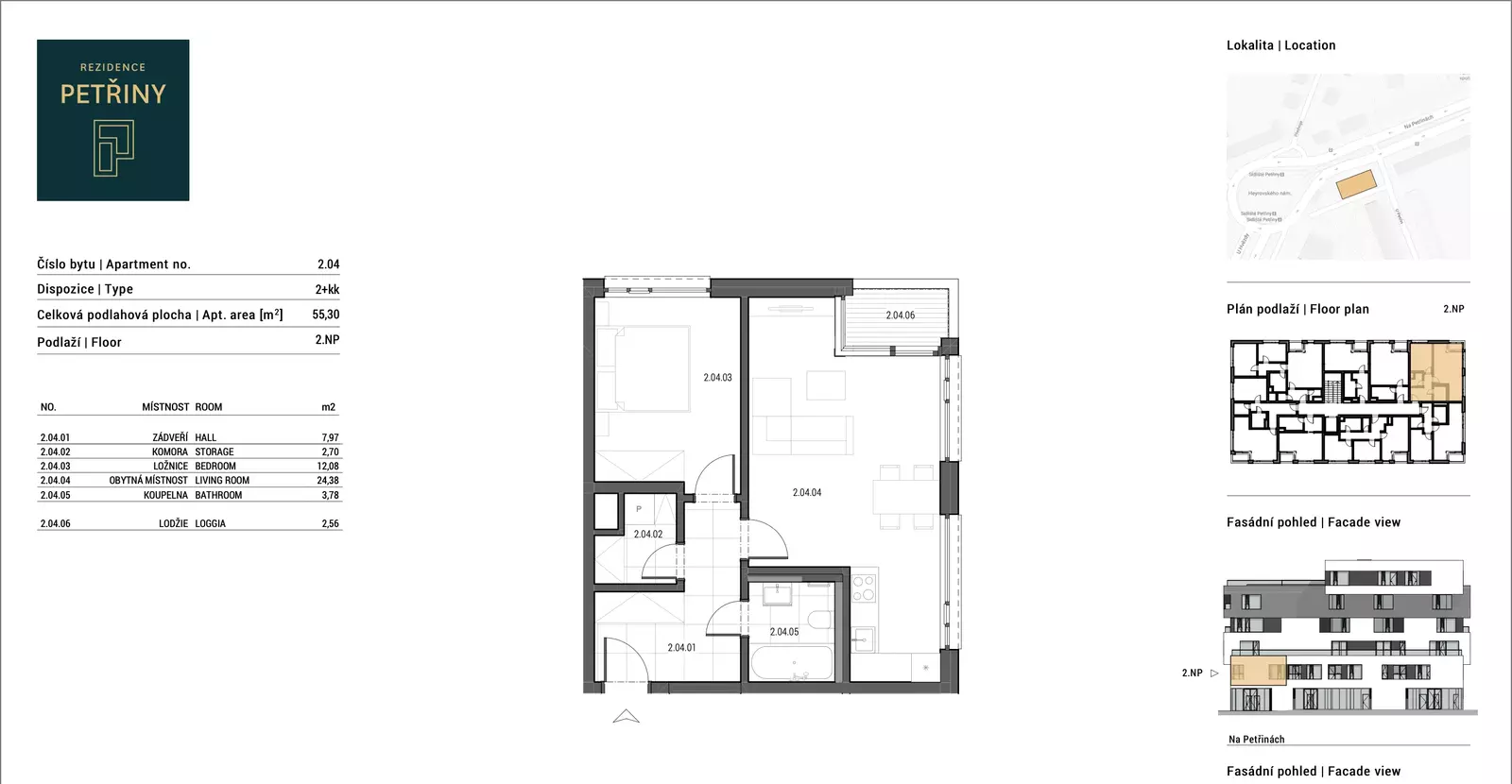
Dovolujeme si Vám nabídnout byt 2+kk (2.04) 55,3 m2 z developerského projektu Rezidence Petřiny na Praze 6
  • 2+kk
    Dispozice
  • Osobní
    Vlastnictví
  • 55 m2
    Plocha
  • 1
    Podlaží
  • Skeletová
    Budova

Dovolujeme si Vám nabídnout byt 2+kk (2.04) 55,3 m2 z developerského projektu Rezidence Petřiny na Praze 6

U Petřin, Praha, okres území Hlavního města Prahy

Projekt obsahuje 26 prémiových bytů v osobním vlastnictví v těsné blízkosti metra Petřiny a Obory Hvězda. Byty mají podlahové vytápění, dřevěné podlahy, klimatizaci, chytrou domácnost, venkovní žaluzie či je na výběr z luxusních materiálů.
Bytový dům má dispozice bytů od menších 1+kk po příjemných 4+kk. Každý byt je jiný a něčím specifický. Ať už je to výhled, dispozice či velkorysá terasa.

Dispozice bytu 2+kk s označením 2.04. Byt se nachází ve 2.NP s výtahem.
Disp.: zádveří 7,97 m2, komora 2,70 m2, ložnice 12,08 m2, obytný prostor 24,38 m2, koupelna 3,78 m2. Lodžie 2,56 m2. Celková plocha: 55,30 m2. Orientace bytu je SZ,V.
V ceně je 1 parkovací stání a 1 kóje.

Lokalita:
Město:
Už několik let jsou pražské Petřiny vyhledávanou městskou čtvrtí. Je to dáno, polohou, klidem i vybaveností. Jedním z nejpodstatnějších benefitů je dopravní dostupnost. Stanice metra trasy A Petřiny umožňuje rychlé přesuny napříč celé metropole. Autem pár minut na letiště, nákupní centrum Zličín, pražský okruh nebo Smíchovskou náplavku nebo na kole za sportem do blízkého parku Ladronka. Petřiny jsou dnes moderní část Prahy spojující v sobě klid, pohodu a životní styl.
Příroda:
Rezidence Petřiny má přírodu doslova na dosah. Stačí pět minut procházkovým tempem a jste v oboře letohrádku Hvězda. In-line bruslení, jogging nebo volleyball naleznete v nedalekém parku Ladronka a nejhezčí scenérie máte na dosah v chráněné oblasti Divoká Šárka s vodní nádraží Džbán.
Pro více informací mě kontaktujte.

Hypoteční kalkulačka

Informace o nemovitosti

Číslo zakázky
926326
Provize
včetně provize
Okres
území Hlavního města Prahy
Obec
Praha
Městská část
Praha 6
Ulice
U Petřin
Datum aktualizace
6.10.2025
Kategorie
Byty
Číslo podlaží v domě
1
Dispozice bytu
2+kk
Vlastnicví
Osobní
Stav objektu
Novostavba
Budova
Skeletová
Plocha lodžie m2
2
Lodžie
ano
Elektřina
230V
Odpad
Veřejná kanalizace
Plyn
Plynovod
Energetická náročnost
C - Úsporná

Kontaktovat makléře