RK Evropa
MENU
Zavřít mapu
Foto
Novinka
6 394 667 Kč

C - Úsporná
Počet obrázků11
Dovolujeme si Vám nabídnout byt 1+kk (5B) z developerského projektu Bydlení Pražská na Praze 10 – Hostivař
  • 1+kk
    Dispozice
  • Osobní
    Vlastnictví
  • 32 m2
    Plocha
  • 4
    Podlaží
  • Skeletová
    Budova

Dovolujeme si Vám nabídnout byt 1+kk (5B) z developerského projektu Bydlení Pražská na Praze 10 – Hostivař

Pražská, okres území Hlavního města Prahy

Na pomezí Strašnic a Hostivaře, v jihovýchodní části Prahy vzniká nová obytná čtvrť s nadstandardními benefity pro život.
Výstavba bytového domu s celkovým počtem 27 středně metrážních bytů 1+kk, 2+kk a 3+kk poskytne pohodlné bydlení s prostornou terasou a garážovým stáním. Lokalita poskytuje klid a bezpočet možností aktivně tráveného času. Vždyť se také projekt nachází v těsné blízkosti chráněné krajinné oblasti Triangl či nedaleké Hostivařské přehrady.
Byty jsou vybaveny v nadstandardním provedení. Samozřejmostí jsou dřevěné podlahy s dubovým povrchem, značkové zařizovací předměty v koupelnách, luxusní keramické obklady a dlažby, klimatizaci a venkovní žaluzie.

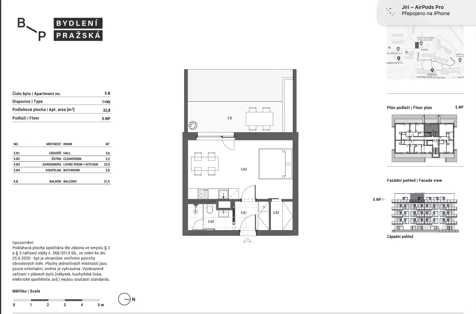
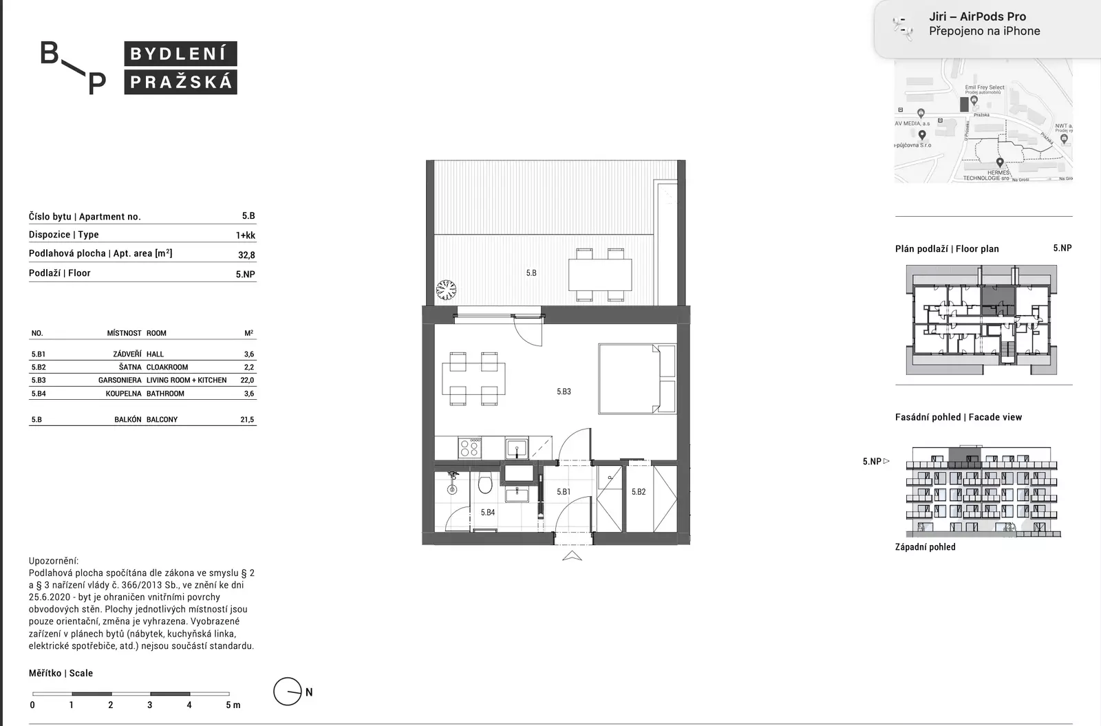
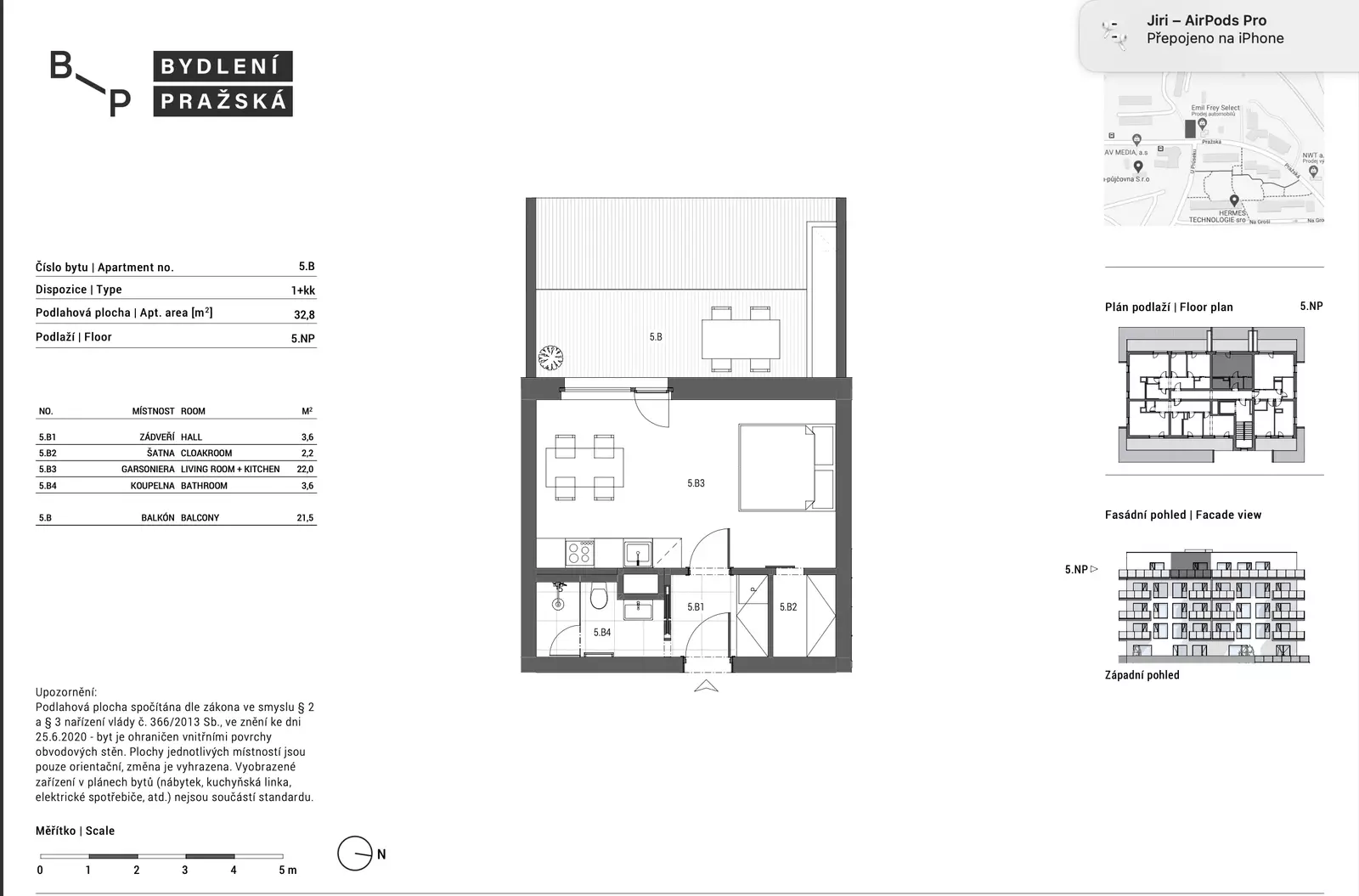
Dispozice bytové jednotky s označením 5B.
Byt se nachází ve 5.NP s výtahem. Byt o dispozici 1+kk s plochou 32,8 m2 a balkonem o velikosti 21,5 m2. Byt je umístěn na Z.
Disp.: zádveří 3,6 m2, šatna 2,2 m2, kuchyň a obývací pokoj 22,0 m2, koupelna 3,6 m2, balkon 21,5 m2.
Garážové parkovací stání 500.000,-Kč vč. DPH. Sklepní kóje 220.000,-Kč vč. DPH.

Lokalita:
Hostivař je oblíbenou městskou částí, kde se mění stará historie v moderní zdravý životní styl. Slibuje pohodlné bydlení a aktivní odpočinek s dobrou vybaveností, potenciálem dalšího rozvoje a výbornou dostupností. Tu zajištuje nedaleké metro Skalka, autobusové či tramvajové linky a Nádraží Hostivař.
Lokalita nabídne klid a bezpočet možností aktivního trávení času. Projekt se nachází nedaleko Hostivařského lesoparku s přehradou či chráněné krajinné oblasti Triangl. Okolí je lemované spoustou cyklotras, na své si přijdou milovníci golfu, volejbalu, tenisu či fitness klubů. Aktivní odpočinek naleznete i v nedalekém sportovním klubu Hamr u Hamerského rybníka v Záběhlicích. Nechybí občerstvení, kavárny či stylové restaurace, OC Park Hostivař 375 m.

Předpokládaná kolaudace koncem roku 2025.

Hypoteční kalkulačka

Informace o nemovitosti

Číslo zakázky
926236
Provize
včetně provize
Okres
území Hlavního města Prahy
Městská část
Praha 10
Ulice
Pražská
Datum aktualizace
25.11.2025
Kategorie
Byty
Číslo podlaží v domě
4
Dispozice bytu
1+kk
Vlastnicví
Osobní
Stav objektu
Novostavba
Budova
Skeletová
Počet podlaží objektu
7
Elektřina
230V
Odpad
Veřejná kanalizace
Plyn
Plynovod
Energetická náročnost
C - Úsporná

Kontaktovat makléře