RK Evropa
MENU
Zavřít mapu
Foto
7 092 120 Kč

B - Velmi úsporná
Počet obrázků9
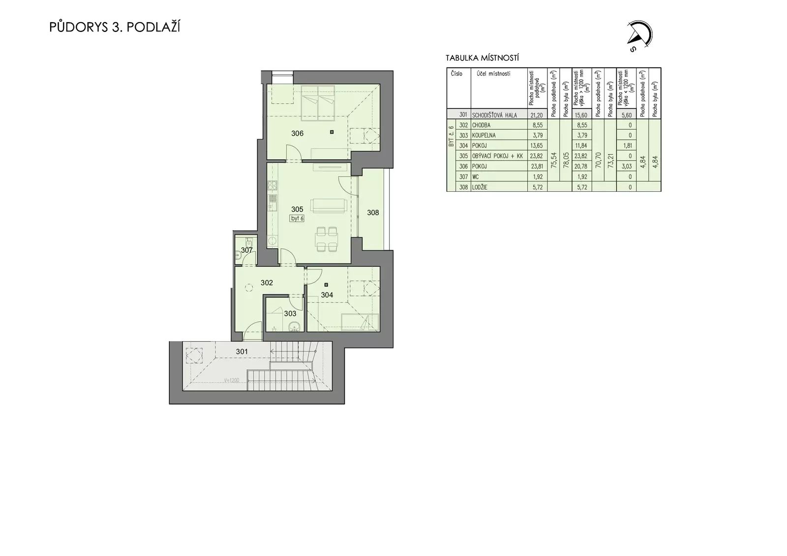
Prodej bytu 3+kk 77,68 m²
  • 3+kk
    Dispozice
  • Osobní
    Vlastnictví
  • 77 m2
    Plocha
  • 2
    Podlaží
  • Podkrovní
    Typ bytu
  • Cihlová
    Budova

Prodej bytu 3+kk 77,68 m²

Rozkošská, Havlíčkův Brod, okres Havlíčkův Brod

Hledáte moderní a nadčasové bydlení v klidné části města Havlíčkův Brod?
Nabízíme k prodeji exkluzivní byt 3+kk o ploše 77,68 m², který je součástí pečlivě připravovaného developerského projektu s kompletní rekonstrukcí bytového domu.
Rekonstrukce zahrnuje fasádu se zateplením, střešní konstrukci včetně krytiny, nová okna i společné prostory domu. Bytová jednotka č. 1 se nachází v 3. nadzemním podlaží bytového domu a díky jižní orientaci nabízí dostatek denního světla.
Tento podkrovní byt bude dokončen ve vysokém standardu – koupelna, kvalitní podlahové krytiny, interiérové dveře včetně zárubní. Samozřejmostí je možnost výběru materiálů a barevných provedení dle preferencí budoucího majitele.
O komfort bydlení se postará teplovodní podlahové vytápění, vytápění i ohřev vody zajistí centrální plynový kotel v domě.
V ceně je sklepní kóje a parkovací stání na vlastním pozemku.
Předpokládaný termín dokončení: první kvartál roku 2027.
Energetická náročnost budovy: PENB – třída B.
Nemovitost je ideální volbou pro komfortní bydlení i jako dlouhodobá investice.
V případě zájmu mě neváhejte kontaktovat.

Informace o nemovitosti

Číslo zakázky
973070
Okres
Havlíčkův Brod
Obec
Havlíčkův Brod
Ulice
Rozkošská
Datum aktualizace
11.2.2026
Kategorie
Byty
Číslo podlaží v domě
2
Dispozice bytu
3+kk
Vlastnicví
Osobní
Stav objektu
Ve výstavbě
Budova
Cihlová
Plocha lodžie m2
5
Lodžie
ano
Počet míst k parkování
1
Elektřina
230V
Odpad
Veřejná kanalizace
Plyn
Plynovod
Komunikace
Asfaltová
Energetická náročnost
B - Velmi úsporná

Kontaktovat makléře