RK Evropa
MENU
Zavřít mapu
Foto
10 580 000 Kč

G - Mimořádně nehospodárná
Počet obrázků16
Prodej stavebního pozemku s projektem penzionu „Chalet Emma“ před vydáním stavebního povolení Rokytnice nad Jizerou
  • Cihlová
    Budova
  • Projekt
    Stav objektu
  • 421 m2
    Užitná plocha
  • 9
    Parkování

Prodej stavebního pozemku s projektem penzionu „Chalet Emma“ před vydáním stavebního povolení Rokytnice nad Jizerou

okres Semily

Prodej stavebního pozemku s projektem penzionu „Chalet Emma“ – Rokytnice nad Jizerou.

Nabízíme stavební pozemek s kompletním projektem rodinného penzionu „Chalet Emma“ v atraktivní horské lokalitě Rokytnice nad Jizerou. Projekt je připraven ve stavu před vydáním stavebního povolení, což umožňuje rychlý start investice. V Rokytnici se plánují velké investice a vy můžete mít již nyní projekt, který je připraven k realizaci.

Základní informace o projektu:
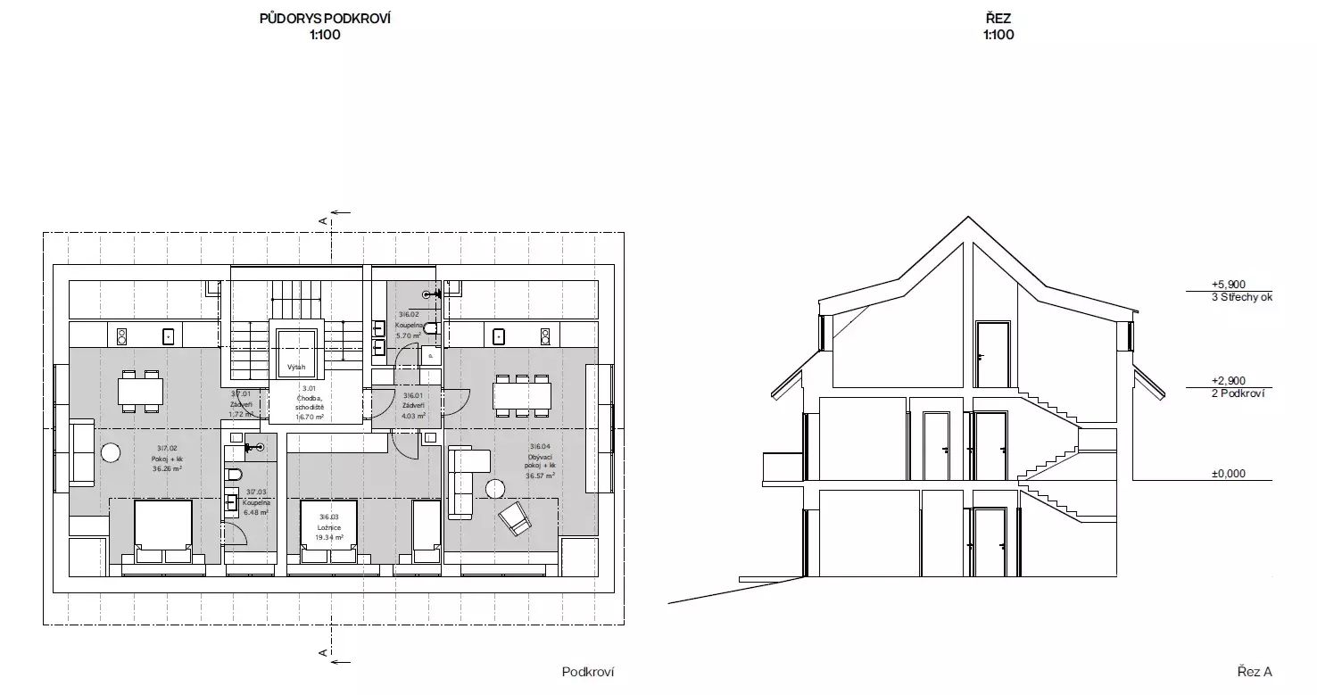
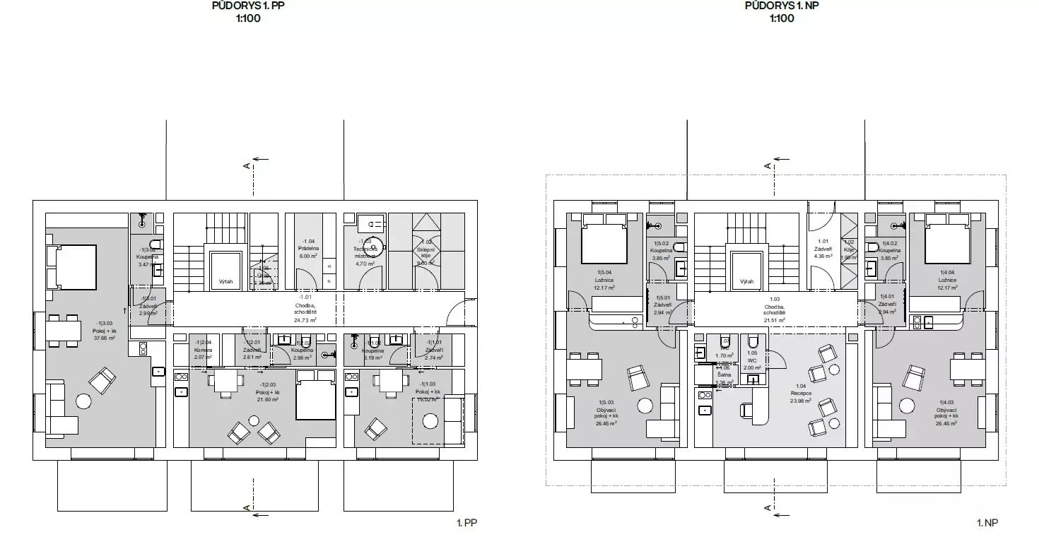
• Rodinný penzion se 7 ubytovacími jednotkami a recepcí
• Podsklepená jednopodlažní budova s obytným podkrovím
• Jednotky mají vlastní sociální zařízení a kuchyňku, některé přímo s přístupem na terasu nebo balkon
• Recepce, společenská místnost a úschovna sportovního vybavení
• Hlavní vstup z ulice, druhý vstup z podzemního podlaží na terasu

Charakteristika lokality:
Pozemek se nachází v oblasti s rozvolněnou zástavbou – v okolí jsou rodinné domy, penziony a bytové domy. Nenachází se v záplavovém ani poddolovaném území. Přístup je z místní komunikace. Pozemek je součástí zastavitelného území města.

Stav připravenosti projektu:
• Projekt je ve stavu před vydáním stavebního povolení
• Připravená plánovací smlouva
• Demoliční výměr stávající stavby s nabytím právní moci
• Zajištěna stanoviska dotčených orgánů
• Kompletní projektová dokumentace je k dispozici

Tento projekt představuje unikátní příležitost pro investory:
Stavební pozemek s připraveným projektem penzionu, včetně všech potřebných dokumentů, je ideální pro rychlou realizaci výstavby ubytovacího zařízení v prestižní horské lokalitě s celoroční turistickou atraktivitou.

Informace o nemovitosti

Číslo zakázky
972660
Okres
Semily
Datum aktualizace
19.3.2026
Kategorie
Komerční
Druh prostor
Ubytování
Vlastnicví
Osobní
Stav objektu
Projekt
Budova
Cihlová
Plocha parcely m2
1782
Počet míst k parkování
9
Elektřina
230V
Odpad
Veřejná kanalizace
Plyn
Plynovod
Doprava
MHD, Silnice, Autobus
Komunikace
Asfaltová
Energetická náročnost
G - Mimořádně nehospodárná

Kontaktovat makléře