RK Evropa
MENU
Zavřít mapu
Foto
Novinka
60 000 Kč za měsíc

G - Mimořádně nehospodárná
Počet obrázků21
Exkluzivní nabídka v lukrativní lokalitě na viditelném místě v Pardubicích v části Polabiny v ulici Bělehradská.
  • Cihlová
    Budova
  • Dobrý
    Stav objektu
  • 540 m2
    Užitná plocha
  • 0
    Parkování

Exkluzivní nabídka v lukrativní lokalitě na viditelném místě v Pardubicích v části Polabiny v ulici Bělehradská.

okres Pardubice

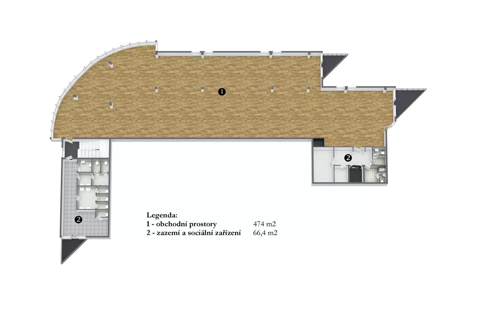
Obchodní prostor je ideální k využití na prodejní showroom včetně zázemí, nebo fitness centrum.
Klimatizovaný obchodní prostor tvoří z 90% prosklené plochy se dvěmi balkony, zázemí WC, sklad.
Obchodní prostor má dva vstupy, jeden vstup z parkoviště od obchodního domu Lidl a druhý vstup od vlastního parkoviště od benzínové pumpy OMV, velkou výhodou je možnost využívání výtahu.
Přípojky: objekt je vytápěn ústředním topením pomocí plynového kotle, ohřev vody el bojler. Možno umístění obchodních reklam na objektu.
Jedná se o velmi frekventovanou ulici. Obchodní prostory jsou ihned k dispozici.
Celková plocha obchodní prostor 474 m2 a zázemí o výměře 66,4m2. Sjednejte si prohlídku na této velice lukrativní nabídce pronájmu!

Informace o nemovitosti

Číslo zakázky
972139
Okres
Pardubice
Datum aktualizace
12.12.2025
Kategorie
Komerční
Číslo podlaží v domě
2
Druh prostor
Obchodní prostory
Vlastnicví
Osobní
Stav objektu
Dobrý
Budova
Cihlová
Elektřina
230V
Odpad
Veřejná kanalizace
Plyn
Plynovod
Doprava
MHD, Silnice, Autobus, Vlak
Energetická náročnost
G - Mimořádně nehospodárná

Kontaktovat makléře