RK Evropa
MENU
Zavřít mapu
Foto
Novinka
20 980 000 Kč

D - Méně úsporná
Počet obrázků23
Prodej domu 7+kk, 235m2, zahrada, Praha 4 - Krč
  • 5 a více pokojů
    Dispozice
  • 235 m2
    Užitná plocha
  • 249 m2
    Plocha parcely
  • Cihlová
    Budova
  • Rodinný
    Typ objektu
  • Po rekonstrukci
    Stav objektu

Prodej domu 7+kk, 235m2, zahrada, Praha 4 - Krč

Branická, Praha, okres území Hlavního města Prahy

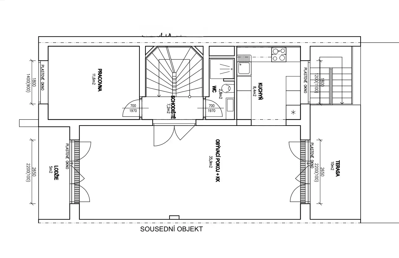
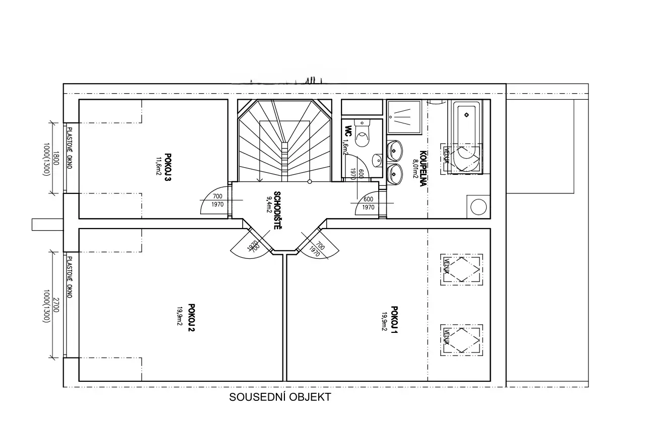
Prodej vícegeneračního domu s nadstandardní dispozicí 7+kk o celkové obytné ploše 235m2.
Jedná se o čtyř podlažní rodinný dům, kolaudovaný v roce 1992. V přízemí domu se nachází prostorná vstupní hala, v zadní části je sklep a technické zázemí, koupelna s prádelnou a plynovým kotlem, dále samostatný pokoj, plocha 25,3m2 (hostinská místnost s vlastním vstupem, sprchou, toaletou a vlastní terasou), tato jednotka může sloužit i k nezávislému pronájmu.
Ve 2 NP. se nachází prostorný a světlý obývací pokoj s jídelním koutem, kuchyní, která je vybavenou kuchyňskou linkou, výstup na balkon, terasu 12m2 a zahradu, která má plochu 121m2, dále jedna samostatná ložnice, koupelna se sprchou a wc.
Ve 3 NP, jsou tři samostatné ložnice a koupelna s vanou a sprchou, v podkroví je poslední větší ložnice 28,3m2. Dům má plastová okna, žaluzie, na podlahách koberce. Parkování je na ulici před domem.
Obrovskou výhodou je dispozice domu, která nabízí bydlení početné rodině, také lokalita, vybavenost obce, školy, školky, perfektní dopravní dostupnost, plánovaná linka metra D bude cca 8min. pěšky od domu. Prohlídka možná po dohodě s makléřem.

Hypoteční kalkulačka

Informace o nemovitosti

Číslo zakázky
972073
Provize
včetně provize
Okres
území Hlavního města Prahy
Obec
Praha
Městská část
Praha 4
Ulice
Branická
Datum aktualizace
11.3.2026
Kategorie
Domy
Typ objektu
Rodinný
Dispozice domu
5 a více pokojů
Vlastnicví
Osobní
Stav objektu
Po rekonstrukci
Budova
Cihlová
Plocha parcely m2
249
Plocha lodžie m2
5
Lodžie
ano
Počet míst k parkování
2
Elektřina
230V
Odpad
Veřejná kanalizace
Plyn
Plynovod
Telekomunikace
Internet
Doprava
MHD
Komunikace
Betonová
Energetická náročnost
D - Méně úsporná

Kontaktovat makléře


Hypoteční poradce

Kontaktovat poradce