RK Evropa
MENU
Zavřít mapu
Foto
Novinka
2 790 000 Kč
Počet obrázků21
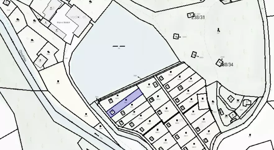
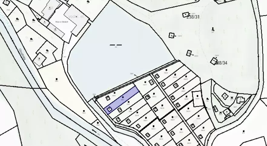
Prodej zděné chaty s pozemkem 484 m² – Kunčí, Slatiňany (ev. č. 216)
  • 2 pokoje
    Dispozice
  • 35 m2
    Užitná plocha
  • 483 m2
    Plocha parcely
  • Cihlová
    Budova
  • Velmi dobrý
    Stav objektu

Prodej zděné chaty s pozemkem 484 m² – Kunčí, Slatiňany (ev. č. 216)

Slatiňany, okres Chrudim

Nabízíme k prodeji krásnou, celoročně obyvatelnou zděnou chatu v klidné a vyhledávané rekreační lokalitě Kunčí u Slatiňan. Chata stojí na vlastním pozemku o celkové ploše 484 m² a její zastavěná plocha činí 22 m². Ideální místo pro víkendové pobyty, rodinnou rekreaci i jako únik z města do přírody.


Dispozice a vybavení chaty
• Tekoucí voda z vlastní studny přivedená do kuchyně i koupelny
• Ohřev vody, splachovací WC
• Kuchyň i koupelna po kompletní rekonstrukci
• Plastová okna v celé chatě
• Nové elektrické rozvody (sklep, přízemí, 1. patro)
• Vytápění pomocí kamínek na dřevo
• Celá chata je podsklepena
• Ve sklepě vlastní vodárna pro distribuci vody do chaty i na zahradu
• Izolace celé stavby z roku 2017

Venkovní zázemí a pozemek
• Nově vybudovaná pergola (2023) o velikosti 4,5 × 5 m s kvalitním foliovým opláštěním na míru a venkovním krbem
• Polozapuštěný bazén 5,5 × 3,7 m s kompletní filtrací a solárním ohřevem
• Na pozemku dále kůlna/dílna a samostatný pokoj pro hosty s elektřinou
• Udržovaná zahrada se vzrostlými ovocnými stromy a okrasnými keři
• Pohodlný příjezd autem přímo k chatě

Shrnutí

Nemovitost nabízí výjimečné soukromí, dostatek prostoru pro relax i aktivní trávení času a je připravena k okamžitému užívání bez nutnosti dalších investic. Lokalita Kunčí patří mezi oblíbená místa s výbornou dostupností do Slatiňan i Chrudimi.

Pokud hledáte klidné místo obklopené přírodou s kompletním zázemím, tato chata je ideální volbou.

V případě jakýchkoliv dotazů mě neváhejte kontaktovat.

Hypoteční kalkulačka

Informace o nemovitosti

Číslo zakázky
970799
Okres
Chrudim
Obec
Slatiňany
Datum aktualizace
14.11.2025
Kategorie
Domy
Typ objektu
Chata
Dispozice domu
2 pokoje
Stav objektu
Velmi dobrý
Budova
Cihlová
Plocha parcely m2
483
Elektřina
230V
Odpad
Septik
Energetická náročnost
G - Mimořádně nehospodárná

Kontaktovat makléře