RK Evropa
MENU
Zavřít mapu
Foto
Novinka
8 700 000 Kč

B - Velmi úsporná
Počet obrázků15
Prodej bytu 3kk s parkovacím stáním
  • 3+kk
    Dispozice
  • Osobní
    Vlastnictví
  • 78 m2
    Plocha
  • 1
    Podlaží
  • Cihlová
    Budova

Prodej bytu 3kk s parkovacím stáním

Ve Stromovce, Hradec Králové, okres Hradec Králové

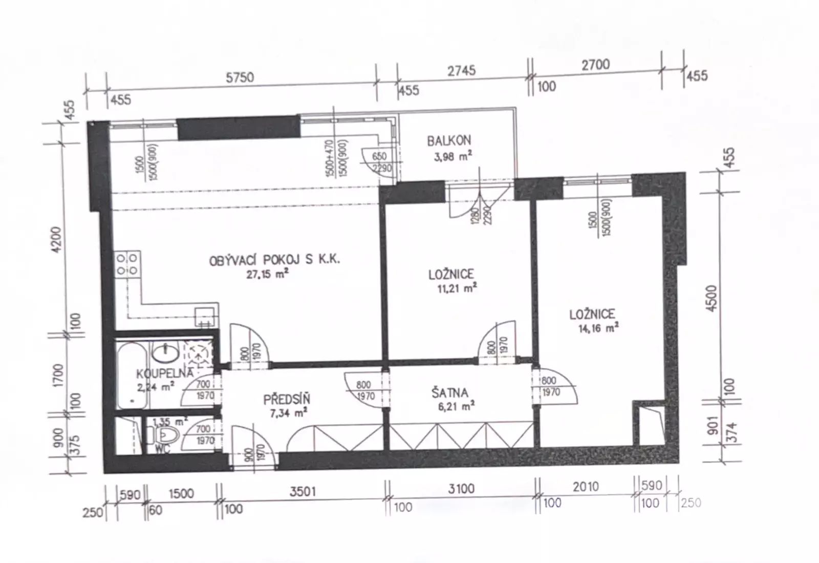
Nabízíme k prodeji moderní a velmi světlý byt o dispozici 3+kk a podlahové ploše 70 m², který se nachází ve vyhledávané a klidné lokalitě Ve Stromovce v Hradci Králové.
Součástí bytu je balkon (3 m²) s příjemným výhledem do zeleně a sklepní kóje (3 m²), která poskytuje dostatek úložného prostoru.

Byt je orientovaný na jižní stranu, díky čemuž je po celý den krásně prosvětlený. Dispozice nabízí prostorný obývací pokoj s kuchyňským koutem, dvě ložnice, koupelnu, samostatné WC a předsíň s úložnými prostory.

Výstavba domu proběhla v roce 2008, objekt je ve velmi dobrém technickém stavu a působí moderním, udržovaným dojmem.

Lokalita Třebeš patří mezi nejklidnější a zároveň nejoblíbenější části Hradce Králové – v okolí najdete školy, školky, obchody, restaurace, zastávky MHD, nebo cyklostezku podél Labe ideální pro procházky či sport.

Velkým benefitem je privátní parkovací stání přímo před domem, které je součástí prodeje.

Byt je ideální jak pro rodinné bydlení, tak i jako investice díky atraktivní poloze a skvělé dostupnosti do centra města.

V případě jakýchkoliv dotazů mě neváhejte kontaktovat.

Hypoteční kalkulačka

Informace o nemovitosti

Číslo zakázky
970557
Okres
Hradec Králové
Obec
Hradec Králové
Ulice
Ve Stromovce
Datum aktualizace
11.11.2025
Kategorie
Byty
Číslo podlaží v domě
1
Dispozice bytu
3+kk
Vlastnicví
Osobní
Stav objektu
Velmi dobrý
Budova
Cihlová
Počet míst k parkování
1
Elektřina
230V
Odpad
Veřejná kanalizace
Doprava
MHD, Silnice, Autobus, Vlak
Energetická náročnost
B - Velmi úsporná

Kontaktovat makléře