RK Evropa
MENU
Zavřít mapu
Foto
Zlevněné
20 990 000 Kč

D - Méně úsporná
Počet obrázků54
Rodinný prostorný dům s výjimečným soukromím a krásným výhledem – Tuchoměřice
  • 5 a více pokojů
    Dispozice
  • 205 m2
    Užitná plocha
  • 980 m2
    Plocha parcely
  • Cihlová
    Budova
  • Rodinný
    Typ objektu
  • Velmi dobrý
    Stav objektu

Rodinný prostorný dům s výjimečným soukromím a krásným výhledem – Tuchoměřice

Pod Hájem, Tuchoměřice, okres Praha-západ

Hledáte místo, kde můžete skutečně bydlet, ne jen přespávat? Dům, který nabídne dostatek prostoru pro rodinu, klidné zázemí mimo městský ruch a zároveň rychlou dostupnost do Prahy? Právě takové bydlení nabízí tento prostorný rodinný dům v oblíbených Tuchoměřicích, v lokalitě spojující soukromí, zeleň a komfort každodenního života.

Dům je ideální volbou především pro rodinu hledající dlouhodobé komfortní bydlení s dostatkem prostoru pro všechny členy domácnosti. Stejně dobře však osloví i klienty pracující v Praze, kteří chtějí po pracovním dni přijíždět do klidného prostředí s atmosférou venkova, nebo kupující, kteří preferují soukromí, výhledy a kontakt s přírodou bez nutnosti vzdát se výhod hlavního města.

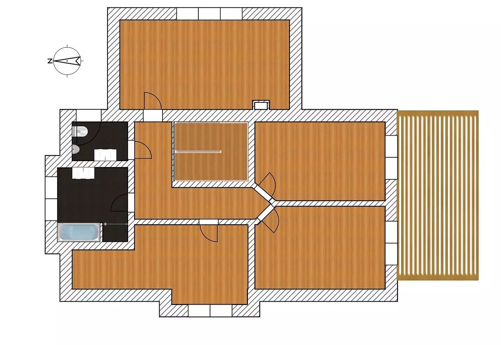
Dispozičně dům nabízí velkorysé rodinné uspořádání s dostatkem obytných místností, které umožňuje pohodlné fungování vícečlenné rodiny. Prostor přirozeně umožňuje oddělení společenské a klidové části domu, vznik pracovny či home office i dostatek soukromí pro jednotlivé členy domácnosti. Velká okna navíc propojují interiér se zahradou a okolní zelení.

Jedním z hlavních benefitů nemovitosti je samotný pozemek a jeho umístění. Zahrada poskytuje vysokou míru soukromí, dostatek prostoru pro rodinné aktivity, relaxaci i setkávání s přáteli. Příjemnou atmosféru doplňuje otevřený výhled do okolní krajiny, který umocňuje pocit klidu a odstupu od městského provozu.

Tuchoměřice patří dlouhodobě mezi velmi vyhledávané lokality v bezprostředním okolí Prahy. Nabízí kombinaci přírodního prostředí, občanské vybavenosti a výborné dopravní dostupnosti do hlavního města i na letiště Václava Havla. Každodenní dojíždění je tak komfortní, zatímco samotné bydlení zůstává klidné a rezidenční.

Základní informace o nemovitosti:

samostatně stojící rodinný dům

dispozice: 6+1

užitná plocha cca 205 m²

pozemek se vzrostlou zahradou zajišťující soukromí

dostatek parkovacích možností na pozemku

klidná rezidenční zástavba

krásné výhledy do okolní krajiny

výborná dostupnost Praha – letiště – Praha západ

Tato nemovitost představuje ideální řešení pro ty, kteří hledají prostorný rodinný dům s charakterem, soukromím a dlouhodobou hodnotou v jedné z nejžádanějších lokalit v blízkosti Prahy.

V případě zájmu o více informací nebo domluvení osobní prohlídky mě neváhejte kontaktovat. Rád vám dům osobně představím.

Hypoteční kalkulačka

Informace o nemovitosti

Číslo zakázky
954700
Poznámka k ceně
Cena včetně provize RK
Provize
včetně provize
Okres
Praha-západ
Obec
Tuchoměřice
Ulice
Pod Hájem
Datum aktualizace
1.3.2026
Kategorie
Domy
Typ objektu
Rodinný
Dispozice domu
5 a více pokojů
Vlastnicví
Osobní
Stav objektu
Velmi dobrý
Budova
Cihlová
Počet podlaží objektu
3
Plocha parcely m2
980
Počet míst k parkování
5
Elektřina
230V
Odpad
Veřejná kanalizace
Doprava
MHD, Silnice, Dálnice, Silnice
Komunikace
Asfaltová
Energetická náročnost
D - Méně úsporná

Kontaktovat makléře


Hypoteční poradce

Kontaktovat poradce