RK Evropa
MENU
Zavřít mapu
Foto
5 990 000 Kč

C - Úsporná
Počet obrázků17
Prodej bytu 2+kk, Špindlerův Mlýn
  • 2+kk
    Dispozice
  • Osobní
    Vlastnictví
  • 45 m2
    Plocha
  • 2
    Podlaží
  • Cihlová
    Budova

Prodej bytu 2+kk, Špindlerův Mlýn

okres Trutnov

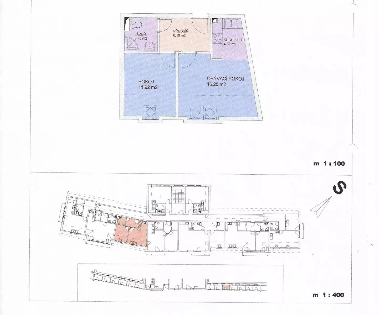
Exkluzivně Vám nabízíme prodej útulného horského bytu 2+kk, 44,5 m2 ve 2. patře apartmánového domu na Labské ve Špindlerově Mlýně v těsné blízkosti lyžařského areálu Labská.

Dispozice bytu je velmi praktická:
• Prostorná vstupní chodba: Po vstupu do bytu se ocitnete v prostorné vstupní chodbě, která umožňuje přístup do všech ostatních částí bytu
• Obývací prostor s kuchyní: Z chodby se přímo vchází do obývacího prostoru, který je propojen s kuchyní. Při využití bytu rodiny s dětmi může obývací prostor sloužit jako ložnice
• Ložnice: Může sloužit jako ložnice nebo dětský pokoj
• Koupelna s WC: Třetí dveře z chodby vedou do koupelny, která je vybavena sprchovým koutem, umyvadlem a toaletou
• K bytu náleží sklep a garážové parkovací stání

Byt se vyznačuje nízkými provozními náklady.
Byt se prodává bez vybavení, v případě zájmu je možné vybavení odkoupit.

Poloha domu:
• 50 metrů od sedačkové lanovky skiareálu Labská
• V těsné blízkosti autobusová zastávka spoje Vrchlabí- Špindlerův Mlýn
• V zimní sezóně skibus do Špindlerova Mlýna zdarma
• Přímo nad labskou přehradou, kde se v létě můžete koupat nebo vyrazit na paddleboard
• Svou polohou je ideálním výchozím místem jak pro letní turistiku, tak i pro zimní sporty

Skiareál Labská, který se nachází na slunečném svahu nad labskou přehradou při příjezdu do Špindlerova Mlýna, je stále vyhledávanější částí Skireálu Špindlerův Mlýn, kde lyžujete na jeden skipas!
Skiareál je propojen Krkonošskou magistrálou s Horními Mísečkami, odkud na Labskou dojedete na lyžích.
Veškerá občanská vybavenost v centru města

V případě zájmu mne neváhejte kontaktovat, ráda Vám sdělím více informací a byt předvedu. Prohlídka, kterou doporučuji, je po domluvě možná i o víkendech.

Informace o nemovitosti

Číslo zakázky
887116
Provize
včetně provize
Okres
Trutnov
Městská část
Labská
Datum aktualizace
14.11.2025
Kategorie
Byty
Číslo podlaží v domě
2
Dispozice bytu
2+kk
Vlastnicví
Osobní
Stav objektu
Dobrý
Budova
Cihlová
Počet podlaží objektu
4
Počet míst k parkování
1
Elektřina
230V
Odpad
ČOV pro celý objekt
Energetická náročnost
C - Úsporná

Váš makléř

Lenka Erlebachová
Telefon 734 267 713
Telefon 499 423 793

Kontaktovat makléře