RK Evropa
MENU
Zavřít mapu
Foto
4 500 000 Kč

F - Velmi nehospodárná
Počet obrázků35
Prodej objektu občanské vybavenosti o velikosti 373 m2 s celkovým pozemkem 813 m2 v obci Vidochov
  • Cihlová
    Budova
  • Dobrý
    Stav objektu
  • 373 m2
    Užitná plocha

Prodej objektu občanské vybavenosti o velikosti 373 m2 s celkovým pozemkem 813 m2 v obci Vidochov

Vidochov, okres Jičín

Hledáte investiční příležitost v okolí Nové Paky? Příležitost v podobně ubytovacího zařízení či jiných možností? Pokud ano, tak tato nabídka prodeje budovy občanské vybavenosti o velikosti 373 m2 a celkovým pozemkem 813 m2 v obci Vidochov je právě pro vás.

Jedná se o zděnou stavbu, která je kolaudovaná jako objekt občanské vybavenosti a nabízí tak široké možnosti využití.
Aktuálně se v podkroví nemovitosti nachází 7 malých ubytovacích jednotek a v přízemí 1 ubytovací jednotka a komerční prostor se zázemím. Komerční prostor sloužil dříve jako hospoda, prodejna potravin a další. Stavba prošla zhruba před 12 – 15 lety částečnou rekonstrukcí. Byly udělané nové rozvody elektřiny, vody, odpadů a omítky a další drobné opravy. Objekt byl dříve kompletně pronajat. Nyní je téměř prázdný a pouze udržovaný.

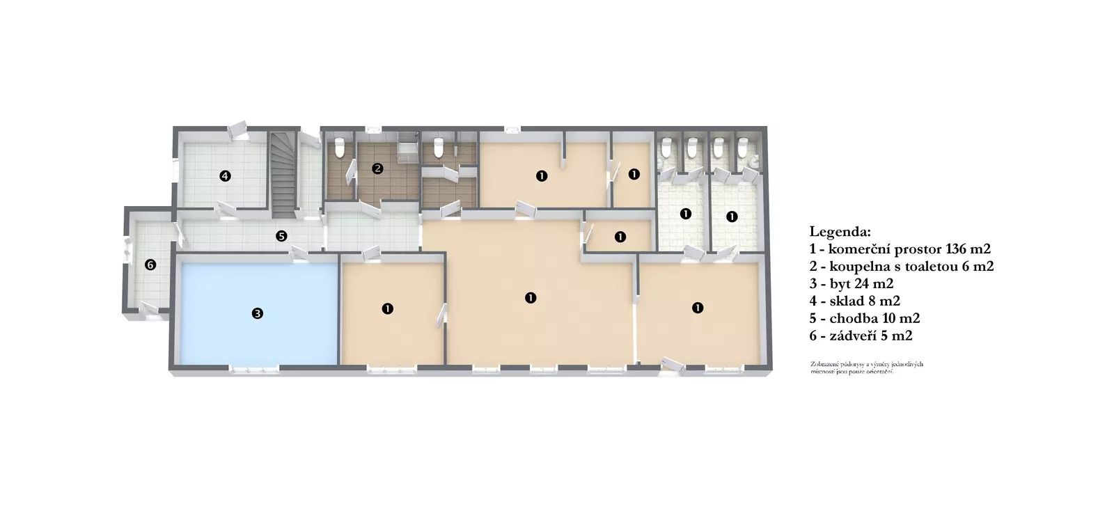
Pro lepší představu a orientaci, jsme si pro vás připravili půdorysy, které jsou součástí fotografií. Ubytovací jednotky a prostory jsou vždy barevně odděleny a vyznačeny

Součástí každé ubytovací jednotky je sociální zařízení (umyvadlo, sprcha, wc a možnost přípravy na pračku a bojler na ohřev vody). Dvě ubytovací jednotky mají sociální zařízení přidělené přes chodbu. Každá ubytovací jednotka má přípravu na kuchyňskou linku (vývody vody a odpadů). Vytápění bylo zajištěno el. přímotopy

Komerční prostor je tvořen třemi částmi a samozřejmostí je prostor pro zázemí, kuchyň a wc pro personál i hosty.

Dispozice:
Přízemí: zádveří, chodba, komerční prostor se zázemím, ubytovací jednotka, koupelna s toaletou, sklad a schodiště do podkroví

Podkroví: chodba, 7 ubytovacích jednotek, koupelna s wc a schody na půdu.

Přípojky: elektřina 220V (momentálně bez přívodu el. energie), voda ze studny, jímka, vytápění dříve na přímotopy, ohřev vody přes bojlery

Budeme se těšit na Váš zájem a věříme, že si nemovitost najde brzy nového majitele, který využije její velký potenciál. Tuto nemovitost Vám velice doporučuji a rád Vám sdělím více informací po telefonu a přivítám na prohlídce.

Budu se těšit na zavolání.
S pozdravem Milan Polívka
Certifikovaný makléř číslo OsR 19./I./2018

Hypoteční kalkulačka

Informace o nemovitosti

Číslo zakázky
970795
Okres
Jičín
Obec
Vidochov
Datum aktualizace
17.11.2025
Kategorie
Komerční
Druh prostor
Ubytování
Vlastnicví
Osobní
Stav objektu
Dobrý
Budova
Cihlová
Plocha parcely m2
813
Elektřina
230V
Odpad
Jímka
Energetická náročnost
F - Velmi nehospodárná

Váš makléř

Milan Polívka
Telefon 734 261 016
Telefon 734 261 016

Kontaktovat makléře